Telecommunications • Security • AV
MDC Low Voltage Systems provides in-house low-voltage design services supporting offices, tenant improvements, technology firms, education, healthcare, public-sector facilities, and data-center and mission-critical environments.
The examples below reflect how MDC approaches every project using BIM-based coordination, standards-driven planning, and installation-ready documentation scaling from typical MDF/IDF rooms to complex, high-density private data centers.
________________________________________
Our Approach
• Early Planning – Clear scope definition and system intent from the start
• Scalable Design – Infrastructure planned for growth, density, and change
• BIM-Based Coordination – Revit used to resolve layouts, pathways, and interfaces before construction
• Installation-Ready Documentation – Clear, coordinated drawings that reduce RFIs and rework

Typical MDF / IDF Room Layouts
Standardized planning of rack layouts, overhead pathways, power coordination, and service clearances for commercial, institutional, and enterprise environments. These layouts represent MDC’s baseline design approach across offices, tenant improvements, education, healthcare, and public-sector projects.
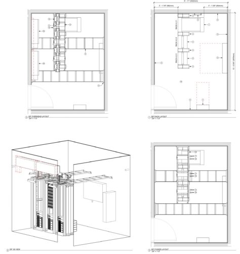
High-Density Technology Environments

High-Density Technology Room Design
BIM-based coordination of rack layouts, pathways, and clearances supporting high-density and mission-critical environments. This example demonstrates how MDC applies the same disciplined design approach used in standard IT spaces to more demanding infrastructure requirements.
Large-Scale Infrastructure Coordination

Large-Scale High-Density Infrastructure Coordination
Coordination of multiple rack rows and extensive overhead pathways demonstrates MDC’s ability to scale its design methodology to larger, more complex private data center environments while maintaining clarity and constructability.
Design Services
Telecommunications
MDF and IDF planning, rack elevations, structured cabling (copper and fiber), backbone distribution, and pathway coordination.
Security
Access Control (ACS), Intrusion Detection (IDS), Intercom (ICS), Video Surveillance (VSS), Telephone Entry, and Two-Way Communication systems.
Audiovisual (AV)
Conference rooms and specialty collaboration spaces, AV infrastructure, device layout, signal flow, system coordination and programming.
ERRCS & Cellular DAS
Design coordination for Emergency Responder Radio Coverage Systems (ERRCS) infrastructure and Cellular Distributed Antenna Systems (DAS) including pathways, head-end space planning, and integration with core telecommunications systems.
Wireless Network Design
Wireless infrastructure design and validation using Ekahau and NetAlly tools, including predictive modeling, access point placement, coverage validation, and performance troubleshooting across office, education, healthcare, and technology environments.
Markets We Support
Corporate Offices • Tenant Improvements • Technology
Education • Healthcare • Public Sector
High-Density Technology Rooms • Data Centers
Why MDC
A well-designed low-voltage system reduces risk, improves constructability, and supports long-term performance. MDC’s design-first approach ensures infrastructure is planned correctly from the start, whether supporting a single office floor or a complex, mission-critical environment.
Contact MDC to learn more about our low-voltage design services.
